Josipa Jovi?a 51/1
21000 Split ? HRVATSKA
TEL: + 385 (0)21 494 666
FAX: + 385 (0)21 494 670

e-mail: nicomi@nicomi.hr

slabostrujna instalacija objekata

Parkirne barijere

PARKIRNE BARIJERE

HIDRAULIČNE RAMPE

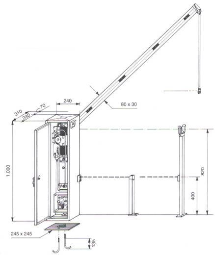
Hidraulična rampa Nicomi 88

Maksimalna dužina aluminijske letve koja se može postaviti na ovu rampu je 4m. Rampa Nicomi 88 je idealna za komercijalne aplikacije, ali i za manje parkinge gdje su potrebni zahtjevi frekventnog otvaranja/zatvaranja. Izrađena je od vodootpornog nehrđajućeg čeličnog kućišta, te je obojana visokokvalitetnom bojom. Unutar kućišta se nalazi pogonski dio: električni motor, hidraulika, centrala, radio prijemnik,... Unutrašnjosti kućišta se pristupa pomoću ključanice (ključ je kodiran), s kojom se otvara stražnja stranica vrata.


Sl. rampa Nicomi 88

Odlika Nicomi 88 rampe je upravo u hidraulici samog pogona, što bitno produljava radni vijek pogonskog dijela rampe

Elektronika (centrala) je smještena unutar kućišta rampe. U slučaju nestanka el. energije moguće je otkočiti aluminijsku letvu te je podizati ručno. Vrijeme podizanja i spuštanja letve je oko 3-4 sek.

Dužina letve može biti od 3-4 m.


Dimenzije rampe Nicomi 88

Hidraulična rampa Nicomi 980

Kao i Nicomi 88, tako i rampa Nicomi 980 sadrži nosač koji se pričvrsti na cementnu podlogu (kocka 60 x 60 x 30 cm). Na tu podlogu se montira kućište rampe. Kućište je otporno na veće udarce i na vibracije aluminijske letve.


Sl. Rampa MEC 900 verzija 8 metara s protuutegom

Brzina kretanja same letve je podesiva za različite dužine letve.

Dužina letve može biti od 4m do 8m.. U kombinaciji sa drugom rampom, mogu zatvarati prostor dužine 16 m.



Unutrašnjost rampe Nicomi 980


Inox verzija kućišta


LANČANA ZAPREKA

Dimenzije lančane zapreke

Pri instalaciji/montaži treba učvrstiti stupić za betonsku čvrstu podlogu. Ukoliko ta potloga ne postoji, potrebno je napraviti betonski temelj dimenzija 40 x 40 x 30 (dužina x širina x dubina).

Potrebno je napraviti kanal u koji se spusti lanac. Ugrađuje se žaljezni lim U profila dimenzija 40 x 40 mm (širina x dubina). Kanal se postavlja između stupa s pogonskim elektromotorom i stupa s protuutegom. Nakon što se iskopa kanal za postavljanje navedenog profila, u njega se osim profila postavlja i UTP cat5e u cijev CS20 (poradi komunikacije fotoćelija).

Poradi veće sigurnosti preporuka je postavljanje dva para fotoćelija u sustavu lančanih zapreka.

HIDRAULIČNI BARIJERNI STUP


Slika instaliranog sustava (stupovi podignuti)


Stupovi se nalaze u razini tla


Prikaz kako barijera zagrađuje prilazni put

 

AUTOMATSKE POVRŠINSKE POTKOVE

Prikaz instaliranog sustava


Manja potkova

Veća potkova


Pri instalaciji/montaži treba učvrstiti podnožje za betonsku čvrstu podlogu. Ukoliko ta potloga ne postoji, potrebno je napraviti betonski temelj dimenzija 50 x 40 x 30 (dužina x širina x dubina).


Dimenzije podnožja


Slika instaliranih sustava automatskih parkirnih potkova

 

RUČNA PARKIRNA PREPREKA

Ručne prepreke su dobavljive i u inox verziji.


Slika instaliranog sustava


Visina u spuštenom stanju

povrtak na vrh >>
 

Sva prava pridržana © Nicomi d.o.o. - Split • Izrada i dizajn: Studio Mađor, Body Jewelry

camisetas rugby baratasCamisetas nba baratascamisetas beisbol baratascamisetas hockey baratascamisetas futbol barataszapatillas kobe bryantplumas parker preciotienda Boy-londonWilson merchandisetienda Wood Woodla perla ropa interior
我以前是那样的,后来才注意到丰胸产品。我先天性发育不太好,因为胸部只有小b杯,所以结婚的时候特别是美女喜欢穿那种瘦小的内衣产后丰胸。时间久了,胸口不大,反而变小了,结婚生下宝宝,喂了一年左右。断奶后,胸部过于收缩粉嫩公主酒酿蛋 ,原本没什么胸部的是a杯而不满。因为胸痛频繁到医院检查,有轻微乳腺增生,医生说我长期穿着内衣也有很大影响丰胸粉嫩公主酒酿蛋,提醒姐妹们注意,不要挤压胸部。
Over the years we have reported several times on crimes and violence related to sneaker releases and the sneaker scene in general. Where there is money to be made, you can be pretty sure that sooner or later there will be people that want to take it from you. Focus Films presents Kicks, a film about sneaker violence and much more.NIKE AIR FORCE 1 FLYKNIT “When his hard-earned kicks get snatched by a local hood,NIKE AIR MAX 2017 fifteen-year old Brandon and his two best friends go on an ill-advised mission across the Bay Area to retrieve the stolen sneakers. Featuring a soundtrack packed with hip-hop classics, Justin Tipping’NIKE AIR HUARACHEs debut feature is an urban coming-of-age tale told with grit, humor and surprising lyricism.”NIKE AIR FORCE 1 HIGH CHEAP The story is based on an experience that Justin Tipping,ADIDAS ALPHABOUNCE the director of the film, had. He purchased a white Nike Air Presto and was jumped by several guys and got his sneakers stolen. Of course his film is much more than a boy-meets-shoe, boy-loses-shoe,MBT KIMONDO MEN boy-gets-shoe-backstory. Brandon,MBT Flame Chaussures the main character in the film, gets his brand new Air Jordan 1 Retro “Bred” stolen and the film tells the story of him and his friend’s tale trying to get them back.NIKE AIR JORDAN RETRO 5 The result is a quintessential urban American tale, a subject that is relevant and real for today’MBT KIMONDO GTX MENs American youth. Here below you can watch another clip of the upcoming movie.NIKE AIR HUARACHE CHAUSSURES Kicks hits theatres September 9. Source: The Guardian .